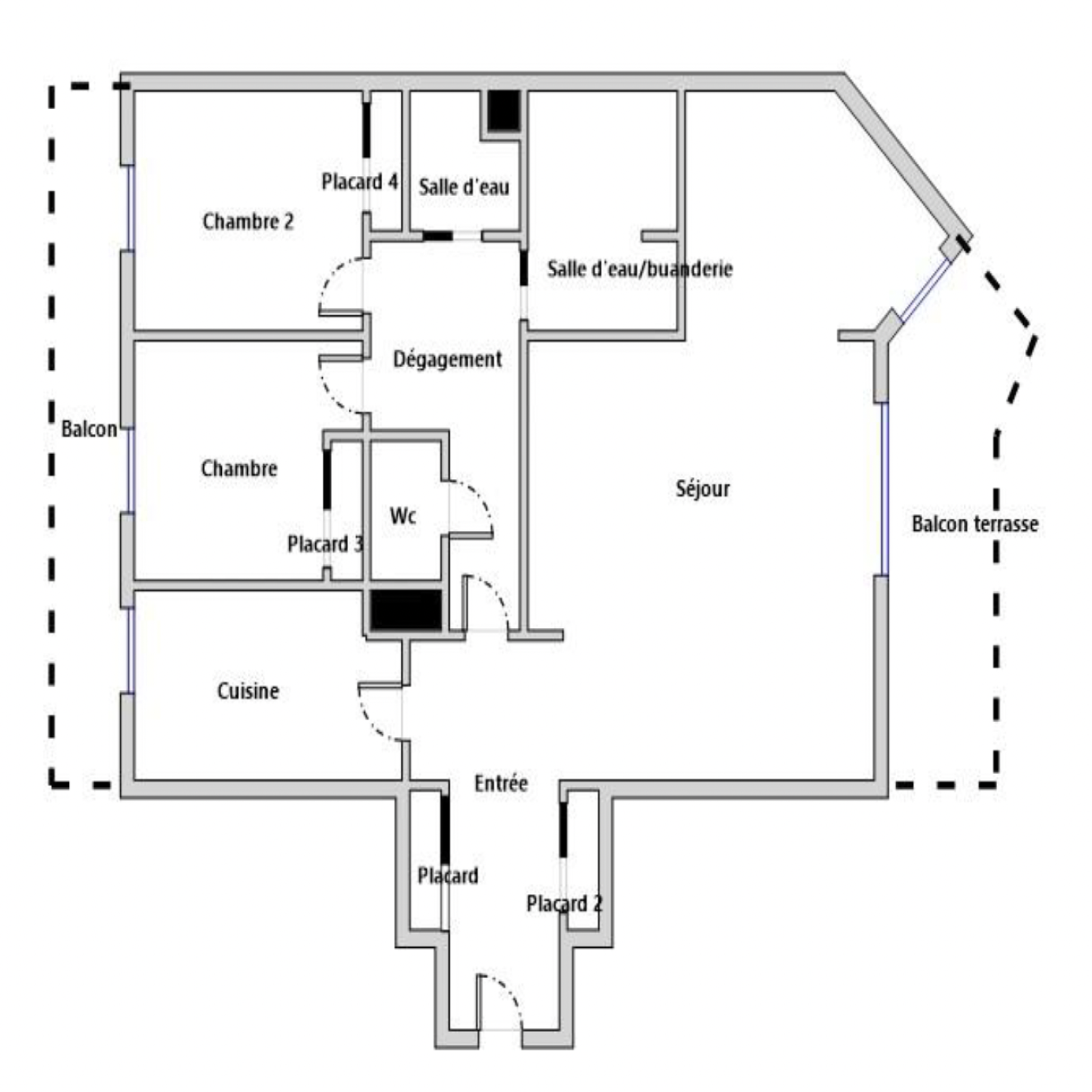
EXCLUVITE - QUARTIER BECON - Appartement familiale traversant de 88m2 au 6 eme étage avec ascenseur. Il comprend, entrée (avec placards), séjour double donnant sur petite terrasse avec vue Parc (exposition SUD-EST), une cuisine aménagée donnant sur balcon, 2 chambres avec placards donnant sur balcon (3eme chambre possible), deux salles d'eau, une cave et un parking en sous-sol. Au sein d'une copropriété très bien entretenue et recherchée à 8mn à pied de la gare de Bécon au pied d'un parc arboré. L'appartement est en bon état général ,bien agencé et profite d'une environnement calme et lumineux. Situé à proximmité de toutes les commodités, commerces, écoles et transports, vous bénéficiez de tous les avantages de vivre dans la quartier le plus recherché de Courbevoie - Bécon. Charges de copropriété 395€/mois (incluant chauffage, eau chaude et eau froide).
Ce bien vous est présenté par SANSVISAVIS.COM l'immobilier avec vue dégagée.
Votre contact Cédric JULLIEN 06 69 14 28 07
