Puteaux, au sein de la Résidence "Le Domaine de Lulli", idéalement situé à proximité des commerces et transports.
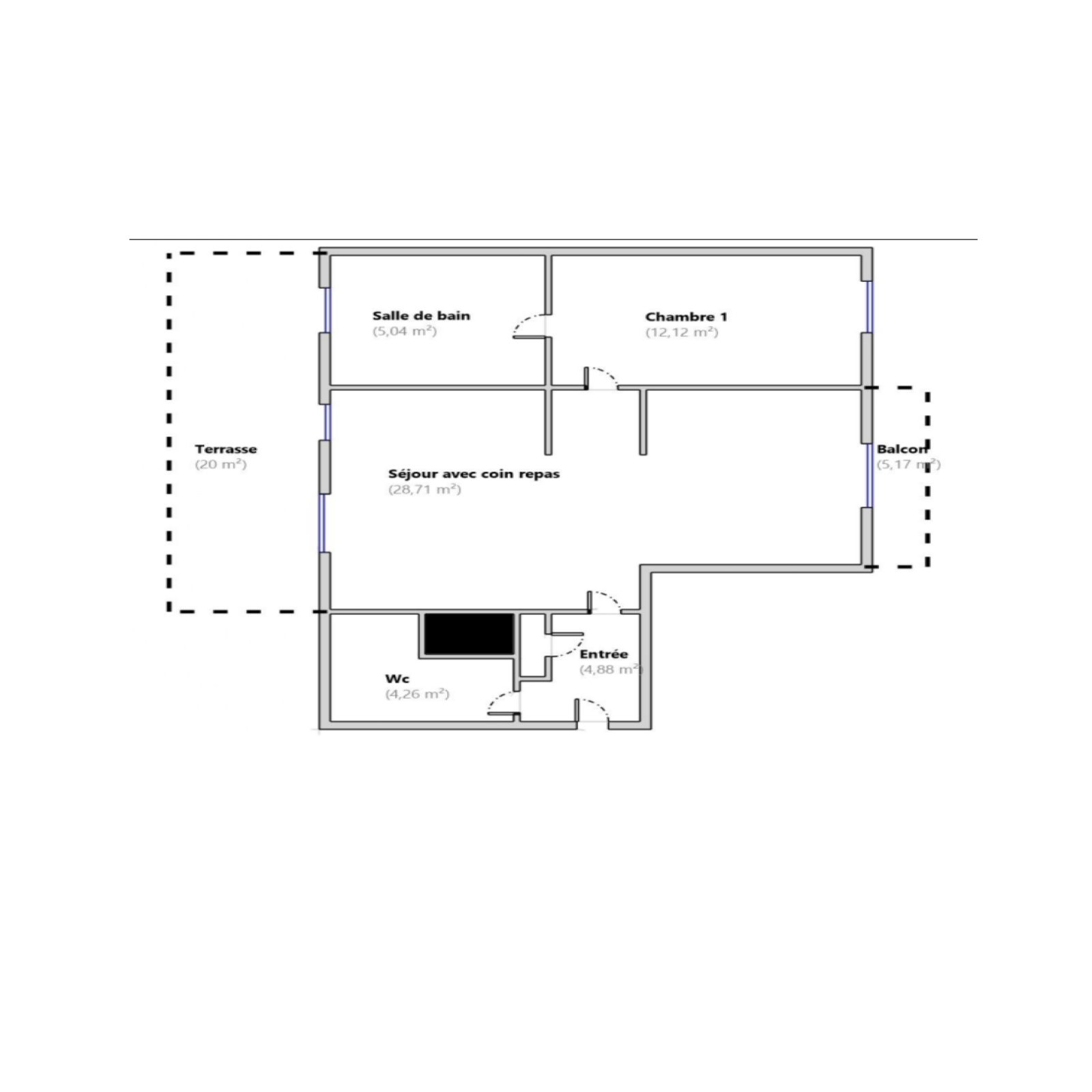
L'Immobilier Sans Vis-à-Vis vous propose un appartement de 2 pièces principales de 55m2, situé au 3ème et dernier étage et composé de la manière suivante:
- Une entrée avec placard
- Un espace cuisine et séjour de 28.71m2
- Une chambre avec placard de 12.12m2
- Une salle de bain
- Un WC séparé avec lave-mains et coin buanderie
2 espaces extrérieurs:
- 1 terrasse de 20m2
- 1 balcon de 5.17m2
Un emplacement de parking en sous-sol disponible en supplément pour 19 000€
Chauffage et eau chaude individuels, faibles charges.
Votre contact: Mylène 07 77 72 35 87
