Puteaux, rue Roque de Fillol & rue Rousselle, idéalement situé à proximité du centre-ville et de tous ses commerces ainsi que des transports
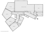
L'Immobilier Sans Vis-à-Vis vous propose, en exclusivité, au 5ème étage (sur 6) un très bel appartement familial de 6 pièces, totalisant une superficie de 128m2 et composé de la manière suivante:
- Une entrée
- Une double séjour (espace salon et salle à manger) de 37m2
- Une cuisine de 12m2
- Un dégagement avec placards
- 4 chambres de 9.86m2 /10.50m2 / 11.96m2 & 12.35m2
- Une salle de bain avec WC de 5m2
- Une salle d'eau avec WC 4m2
- Une seconde salle d'eau (sans WC mais avec branchements et évacuations nécessaires) de 3.5m2
Une cave en sous-sol complète ce bien
Place de parking et box en enfilade disponibles en sus du prix de vente (42 000€)
Eau chaude et chauffage individuels électriques
Appartement très lumineux et bien agencé, coup de coeur assuré
Produit rare sur le secteur, à visiter sans plus tarder
Pour toutes informations complémentaires et/ou demande de visite: Mylène 07 77 72 35 87
