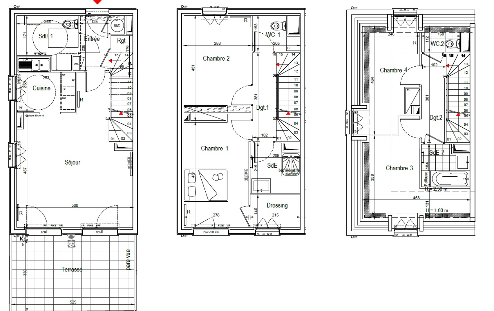
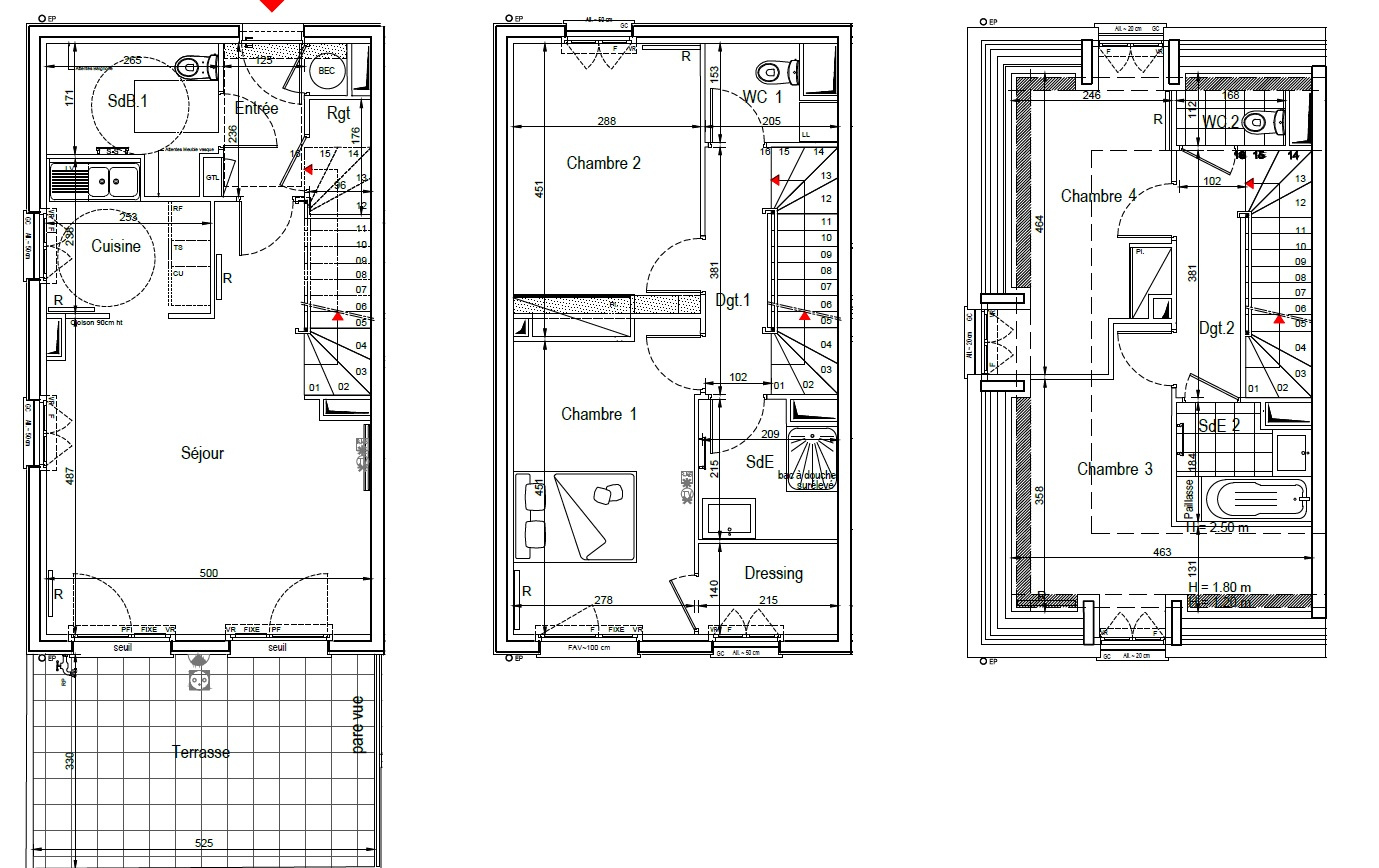
Dans une résidence récente (début 2022), maison de ville de standing dans une allée privative au calme absolu.
Elle comprend :
- Au RDC : un jardinet, une entrée, des WC, une grande pièce de vie avec cuisine ouverte donnant accès à une terrasse de 17m2 exposée sud ainsi que de nombreux rangements.
- Au 1er étage : 2 grandes chambres (13 et 12,5m2), un dressing, une salle d'eau et des WC
- Au 2ème étage : 2 chambres (10 et 11 m2), une seconde salle d'eau et des WC.
Une place de parking est vendue avec la maison.
Copropriété de standing, totalement sécurisée, proche du métro (Léo Lagrange) et des commerces.
